宇宙各地的保险房开云app官网下载入口,都在“撸起袖子加油干”。
手脚宇宙保险性住房的试点城市,天津一经有了骨子行为。
2024年天津通过新建、转念边幅筹集配售型保险性住房7000余套,其入彀议新选址建立配售型保险性住房1000套。
自10月29日起,购买本市保险性住房,公积金首付比例降至1.5成。
12月11日,国度斥地银行天津分行向红桥区丽水苑配售型保险性住房边幅披发了斥地贷款2.16亿元。
如斯看来,天津楼市的“双制度”正在进行。

天津的动作很马上。
一经规画、开工的保险房边幅,位置都很好。

与此同期,多个保险房边幅规画密集公示。
河西八大里地块
北侧与海河直线距离约600米,邻近有地铁1号线陈塘庄站、和悦汇等。

将建立2栋14层到顶小高层,规画104户,户均面积约77平米。

红桥丽水苑地块
位于红桥区地铁1号线节俭说念站邻近。

将建立4栋26层到顶高层,想象架空层。
规画458户,户均面积约94平米。


南开区汾水说念地块
边幅位于临潼路与汾水说念交口隔壁。

规画1栋8-9层到顶洋房,共60户。

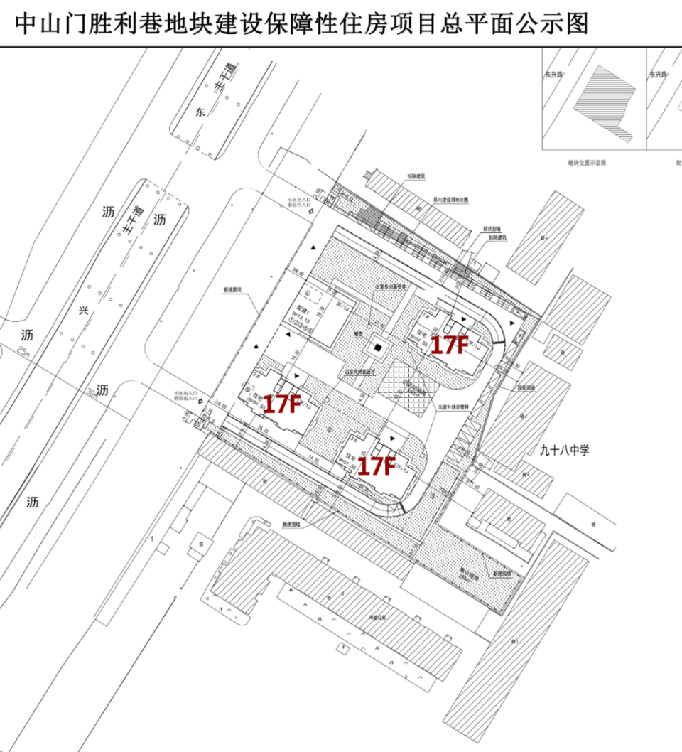
河东中山门得胜巷地块
紧邻天津第九十八中学(龙潭路校区)。

规画3栋17层到顶小高层,设有架空层。
狡计204户,户均面积约87平米。

河北志成路地块
位于华光路与迎贤说念交口隔壁。

规画5栋10-17层到顶的洋房与小高层。


现在来看,天津推出的保险房特色很显豁:
第一、地方好
以上这些地块的位置都可以,基本上都在快速路以内。
邻近学铁商皆全。
第二、居品不差
小高、洋房为主,致使有的地块还有架空层。
第三、速率快
部分地块一经开工,最快瞻望来岁不详后年上市。
那怎样肯求呢?
天津市集合本市本质和各区域功能定位,初步确定的保险对象为工薪收入群体、引进东说念主才和新市民、后生东说念主等群体。各区域保险对象细分如下:
市内六区:重心面向本区域工薪收入群体;
环城四区及滨海新区:重心面向本区域产业引进东说念主才等群体;
远郊新五区:重心面向产业员工和新式城镇化东说念主口。
其他方面天津莫得笃定,不妨先参考下其它城市。
国内第一个公布连络笃定的城市,是郑州。

新建面积搁置在70-120平米,三室户型50-60%。
执行阻滞惩处,间隔以任何边幅将“保住房”变更为商品住房流入商场。
若是有户籍诊治、拖欠房贷、紧要疾病等物种情况,将进行回购。
住房折旧按每年1%的折旧率赐与核减。
“保住房”可以摄取、离异析产,原房屋性质不变。
12月6日,广州也公示《广州市配售型保险性住房惩处目标(试行)》的奉告。
是首个发布连络目标的一线城市。

主肯求东说念主、共同肯求东说念主相配未成年子女应当在本市无自有产权住房,且申购前3年内在本市无自有产权住房挪动记载。
单套建筑面积原则上不提升90平方米。
一个家庭只可领有一套配售型保险性住房。
不得变更为商品住房上市来去。
价钱集协议地段平素商品住房商场价钱的一定比例确定。
拙见所及,天津保险房的连络计谋也许和郑州、广州有好多的相同之处。
需要检修肯求东说念主的年事、社保、是否在天津有住房等等。
确信是阻滞驱动,分别外售售。
销售面积以紧凑型户型为主。
售价可能会是邻近房价的5-7折,但最终还要以笃定为准。

对肯求东说念主来说,上风很彰着:
刚需购房不需要去环城了,可以平直买在市区可以的位置,还不是老破小。
比如南开汾水说念地块不详是河西八大里地块,单价可能就在2万多。
但颓势也有:
户型多数小,只可高傲一段手艺的刚需需求;
居品上和现在在售的商品房存在差距;
屋子唯有居住属性,莫得钞票属性,因为弗成上市来去。
而关于天津楼市来说,改日也可以料念念的是:
有保险房的区域,二手房房价和房钱会被拖拽。
房钱着落的问题在上海等城市一经表露。
后续还会有亮相的保险房边幅开云app官网下载入口,咱们会捏续暖热并共享最新音讯。